Тематические журналы Контакты

Дом с поэтическим названием «Крылатый»

 
 


Дом с поэтическим названием «Крылатый»




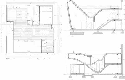
Португальский архитектор Бернардо Родригес создал проект, по которому построен удивительный дом с поэтическим названием House on the Flight of Birds, который представляет собой совокупность изогнутых и прямолинейных объемов, создающих комфортную и в то же время нетривиальную среду для проживания. Рельефность и многогранность архитектуры дома и систем подсветок создают визуальное восприятие конструкции здания в вечернее и дневное время совершенно разное.

Здание, его интерьер и экстерьер как- будто приглашают своих посетителей в небольшое путешествие, которое выходит за пределы дома в окружающий мир.
Дом находится в Португалии на Азорских островах в северной части острова S. Michael. Климатические условия здесь проявляют нестабильный характер, иногда даже очень суровые погодные условия, и поэтому квадратная стена как экран защищает структуру дома от сильного ветра, дующего со стороны Атлантического океана, и внутренние дворики от дождей.

Крылья этой жилой структуры распределили функции дома. На первом этаже поместилась гостиная с открытой планировкой и кухней, здесь же изолированные друг от друга спальни. На другом уровне расположены частные комнаты. На рельефных крышах просторные террасы с потрясающими пейзажными перспективами.

А качественная металлочерепица недорого предлагается компанией taurus-sk.ru, которая предлагает для своих клиентов только качественный продукт.


















 

Комментарии пользователей



Имя
Комментарий
4-я буква в слове "Лампа"
 


 
Интересное


Объявления


Полезное
 


Популярное
Сочетание цветов в интерьере Ресторан под водой на Мальдивах Квартира фотографа Alexander van Berge Красный концептуальный магазин в Бразилии Дом  черно-белого контраста
Дизайн однокомнатной квартиры фото Дизайн ванной комнаты маленького размера (фото) Дизайн комнат для девочек подростков Дизайн гостиной в хрущевке Дизайн ванной комнаты в хрущевке


Мы в социальных сетях
© 2009-2010 cesarevich.ru. Использование материалов только с согласия администрации портала.